Ils nous ont fait confiance
Depuis plusieurs années, nous accompagnons des particuliers, associations et collectivités dans leurs projets de construction, de réhabilitation ou de mise en conformité.
Voici quelques exemples de missions menées avec sérieux, réactivité et transparence.
Maison individuelle – Saint-Pierre (974)
👤 Client : Particulier
📅 Année : 2024 – 3 mois
🎯 Mission : Permis de construire, plans, rendu 3D
📌 Contexte : Terrain en pente en zone réglementée
✅ Notre rôle : Conception, optimisation réglementaire, dépôt du permis et suivi jusqu’à l’obtention
Maison individuelle – Saint Paul (974)
👤 Client : Particulier
📅 Année : 2022 – 3 mois
🎯 Mission : Permis de construire, plans, rendu 3D
📌 Contexte : Terrain plat en zone réglementée
✅ Notre rôle : Conception, optimisation réglementaire, dépôt du permis et suivi jusqu’à l’obtention
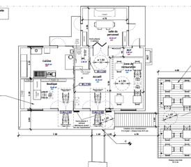
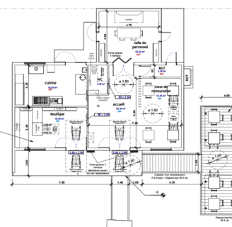
Restaurant – Saint Paul (974)
👤 Client : Professionnel
📅 Année : 2024 – 3 mois
🎯 Mission : Dossier d'ouverture ERP, plans, rendu 3D
📌 Contexte : Terrain en zone réglementée
✅ Notre rôle : Conception, optimisation réglementaire, conseils
Immeuble d'habitation – Sainte Suzanne (974)
👤 Client : Particulier
📅 Année : 2025 – 3 mois
🎯 Mission : Permis de construire, plans, rendu 3D
📌 Contexte : Terrain en pente en zone réglementée
✅ Notre rôle : Conception, optimisation réglementaire, dépôt du permis et suivi jusqu’à l’obtention
















